解决方案

紧邻通州最大“地下城”!通州这处核心区域项目即将动工!

2025-09-09 09:30:08
浏览次数:
返回列表

  许可有效期限:本证自发证之日起三个月内应予施工,逾期应办理延期手续,不办理延期或延期次数、时间超过法定时间的,本证自行废止。

  8月末,市规划自然委发布了“关于《北京城市副中心0101街区FZX-0101-0705、0706、0708地块R2二类居住用地项目设计方案》公示意见反馈情况的通告”。

  为加大公众参与力度、广泛听取公众意见,《北京城市副中心0101街区FZX-0101-0705、0706、0708地块R2二类居住用地项目设计方案》于2025年7月24日至2025年8月1日期间,进行了网上公示,公示期间收到公众反馈意见5条,共涉及6个方面,现将有关采信意见通告如下:

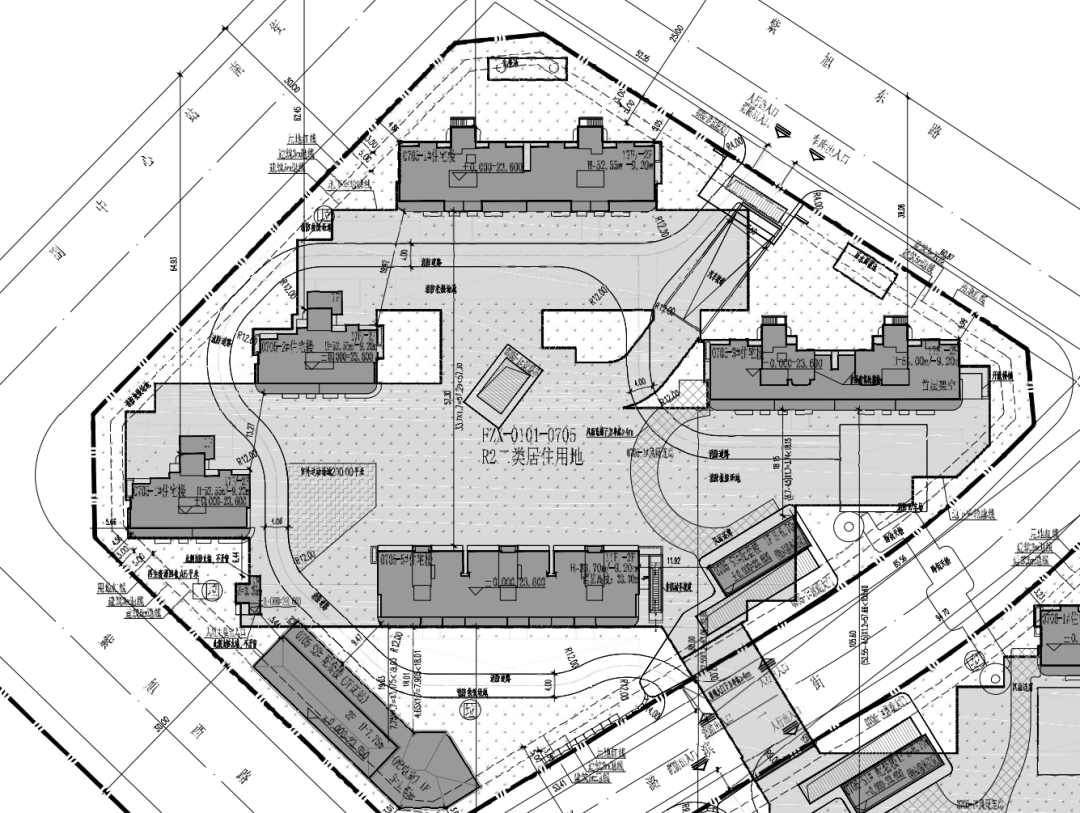
  本项目整体建筑布局方案依托区域风貌管控要求与滨水景观资源,在临河地块的建筑高度沿河岸呈西高东低阶梯式分布,以较高的建筑群塑造韵律起伏的城市天际线。建筑单体按正南北排布,通过楼间视线通廊,让沿河第二排建筑也可共享运河景观资源。

  经日照分析软件(众智日照分析软件V12.0)测算,满足《住宅设计规范》DB11/1740-2020(备案编号:J15036-2020)8.1中每套住宅应至少有一个居住空间能获得冬季日照,且日照标准不应低于大寒日日照时数2小时的日照要求。

  建设单位及设计单位意见:本项目在FZX-0101-0705与0706地块、FZX-0101-0708与0810地块间分别设置1处架空连廊,桥下净空高度不小于4.5米,满足消防车通行条件。计划与项目和周边道路同期实施。

  已完成FZX-0101-0705、0706、0708等8个地块的整体设计,根据开发进度安排,本次先行开展FZX-0101-0705、0706、0708这3个地块的报审工作,剩余5个地块的方案将严格按照相关规范标准进行设计。

  本项目周边有现状通运小学、玉桥小学、北京市第二中学通州校区等教育资源,后续教育资源引进将逐步规划落地。

  一起回顾下市规划自然委发布的“关于北京城市副中心0101街区FZX-0101-0705、0706、0708地块R2二类居住用地项目设计方案的公示”。

  北京城市副中心0101 街区FZX-0101-0705、0706、0708地块R2二类居住用地项目位于北京城市副中心站综合交通枢纽地区,东南至潞滨二街,西南至紫运西路,西北至副中心站南街,东北至紫旭东路。

  其中FZX-0101-0705地块建设用地约1.31公顷,总建筑规模约4.63万平方米(地上计容建筑规模约2.97万平方米,地上不计容建筑规模约0.06万平方米,地下建筑规模约1.60万平方米)

  FZX-0101-0706地块建设用地约1.73公顷,总建筑规模约5.37万平方米(地上计容建筑规模约3.57万平方米,地上不计容建筑规模约0.07万平方米,地下建筑规模约1.72万平方米,最终指标以建设工程规划许可证文件为准)

  FZX-0101-0708地块建设用地约2.24公顷,总建筑规模约8.13万平方米(地上计容建筑规模约5.45万平方米,地上不计容建筑规模约0.31万平方米,地下建筑规模约2.36万平方米)。

  FZX-0101-0705地块西北至副中心站南街,东北至紫旭东路,西南至紫旭西路,东南至潞滨一街。地块用地面积13111.057平方米,总建筑面积46330.90平方米(其中地上计容建筑面积29709.44平方米,地上不计容建筑面积617.92平方米,地下建筑 面积16003.54平方米),地上17层地下-2层,容积率2.2。

  FZX-0101-0706地块西北至潞滨一街,东北至紫旭东路,西南至紫旭西路,东南至潞滨二街。地块用地面积17269.043平方米,总建筑面积53695.28平方米(其中地上计容建筑面积35748.78平方米,地上不计容建筑面积743.86平方米,地下建筑面积17202.64平方米),地上17层,地下-2层,容积率2.07。

  FZX-0101-0708地块西北至潞滨一街,东北至紫旭西路,西南至紫运西路,东南至潞滨二街。地块用地面积22410.199平方米,总建筑面积81284.17平方米(其中地上计容建筑面积54536.43平方米,地上不计容建筑面积3116.75平方米,地下建筑面积23630.99平方米),地上25层,地下-2层,容积率2.43。

  建设位置:通州区北京城市副中心0101街区FZX-0101-0705地块

  建设位置:通州区北京城市副中心0101街区FZX-0101-0706地块

  建设位置:通州区北京城市副中心0101街区FZX-0101-0708地块

  项目块位于北京城市副中心站综合交通枢纽地区,所属01组团,为创新示范组团。位于城市副中心“一带一轴“交汇处,集中体现水城共融、蓝绿交织、文化传承三大特色。规划定位为交通枢纽门户、新一代国际化商务区和站城融合发展示范区。

  作为京津冀协同发展的重要节点,将有效促进环京地区深度融合,全面提升功能圈、产业圈互联互通水平,切实推进现代化首都都市圈建设。作为承接非首都功能疏解的重要承载地,通过城市功能和轨道交通深度融合,提升副中心对中心城区疏解功能和人口的承接功能,提高对东部各区的辐射能力。

  该项目东侧紧邻东六环高线公园,距市政府约2公里,地理位置优越。西侧滨水区域,紧邻京杭大运河,可俯瞰副中心三大建筑,景观优势明显,南侧紧邻运通隧道约20分钟可直达东四环交通便利。

  北侧紧邻副中心站交通枢纽站地下包括地铁6号线线、平谷线、城际铁路联络线、京唐铁路等轨道线路,轨道交通便利。枢纽站上盖规划办公、商业、酒店等功能,大型集中商业区、滨水文化特色商业区可提供餐饮娱乐休闲等服务。